Tipologia alloggio:
PRIVATO
6
persone
Villetta indipendente da 95 mq direttamente sul lago a pochi metri dall’acqua. La casa dispone di un ampio giardino che si affaccia sul lago e può ospitare comodamente 6 persone.
In riva al lago dove passa un comodo sentiero potendo comodamente spostarsi per fare delle belle passeggiate. Appena usciti dal giardino basta attraversare il sentiero e si è subito in acqua!
L'alloggio si trova all'interno del Villaggio Tre Capitelli composto da case e appartamenti, una piscina (aperta da fine maggio a metà settembre), un ristorante - pizzeria, un minimarket, campo da tennis, campo da palla volo e tavoli da ping-pong.
Da giugno alla prima settimana di settembre è aperta la scuola di windsurf e l'attività di noleggio imbarcazioni, tavole da surf e sup.
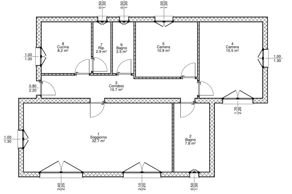
L'alloggio è così composto: una camera matrimoniale, una camera con due letti singoli, ampio soggiorno con divano letto, cucina, bagno con doccia e bagno di servizio.
Il posto macchina è accanto all'alloggio. Le lenzuola non sono fornite, si possono portare da casa o essere noleggiate (solo su prenotazione). La biancheria da bagno e da cucina non è fornita e deve essere portata da casa.
Al lago in 1^ fila
2 camere da letto
Piano terra con giardino
Vista lago
Posto auto
Lavatrice
WiFi
Lavastoviglie
Bollitore elettrico
Macchina caffè americano
Vietato fumare
Cani ammessi
Codice Identificativo Nazionale
(CIN) IT017082B4PJP7AJS8

Garantiamo il prezzo più basso.
Trova un prezzo più basso, ti rimborsiamo il 100% della differenza.

Case vacanze e appartamenti per vacanza in riva al lago d’Idro
50 anni d’esperienza nell’affitto di appartamenti e case vacanze sul lago d’Idro


Prezzi e case e appartamenti per vacanza su misura per te i tuoi familiari e amici
